Urk

De Akkers Veld B - Particuliere Kavels

Tweede fase van ontwikkeling van de Akkers

Type aanbod:

Vrijstaand 2-onder-1-kap
Bekijk het aanbod (30)
Onder optie

Legenda

Onder optie

6 februari 2026 start inschrijving

Op 6 februari 2026 start de inschrijving voor deze kavels

6 maart 2026 inschrijving gesloten

Op 6 maart 2026 sluit de inschrijving voor deze kavels

17 maart 2026 lotingsbijeenkomst

Op 17 maart 2026 is de lotingsbijeenkomst

Informatie

Veld B vormt het tweede deel van de gebiedsontwikkeling van De Akkers. In dit deel van het plan wordt ruimte gecreëerd voor een gevarieerd woningaanbod. Zo komt er sociale woningbouw, worden er projectmatig ontwikkelde woningen gerealiseerd in verschillende typologieën, en is er ook plaats voor particuliere tweekappers en vrijstaande kavels.

Filteren

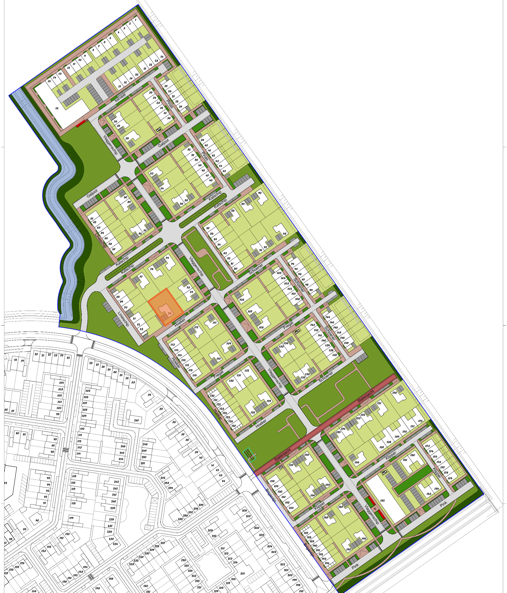
Kavel 36 (medebouwer 37)
Onder optie
30 inschrijvingen

De Akkers Veld B - Particuliere Kavels

Kavel 36 (medebouwer 37)

€ 131.648 Incl. BTW

302 m² 2-onder-1-kap Particulier
Kavel 37 (medebouwer 36)
Onder optie
30 inschrijvingen

De Akkers Veld B - Particuliere Kavels

Kavel 37 (medebouwer 36)

€ 131.648 Incl. BTW

302 m² 2-onder-1-kap Particulier
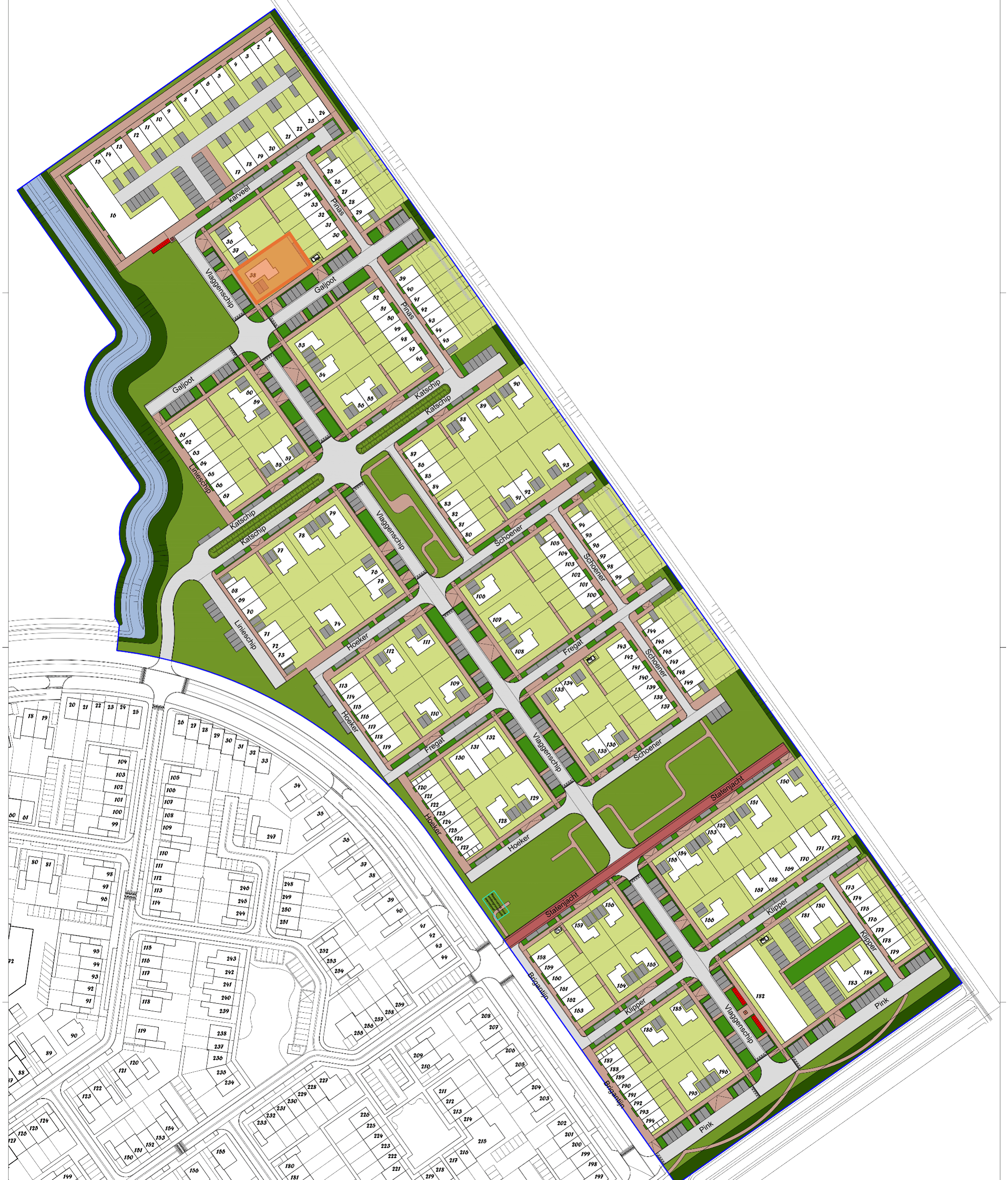
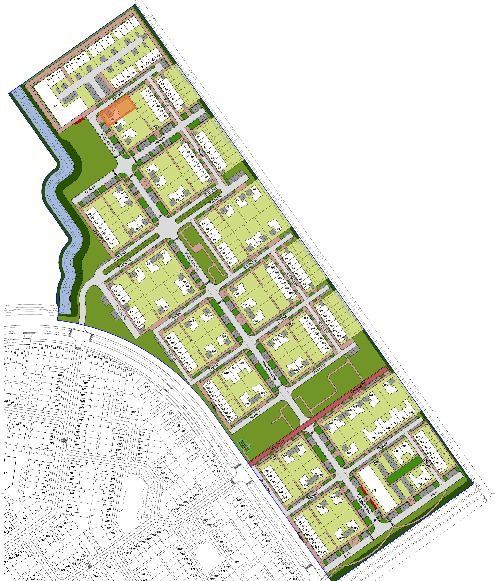
Kavel 38
Onder optie
21 inschrijvingen

De Akkers Veld B - Particuliere Kavels

Kavel 38

€ 258.456 Incl. BTW

522 m² Vrijstaand Particulier
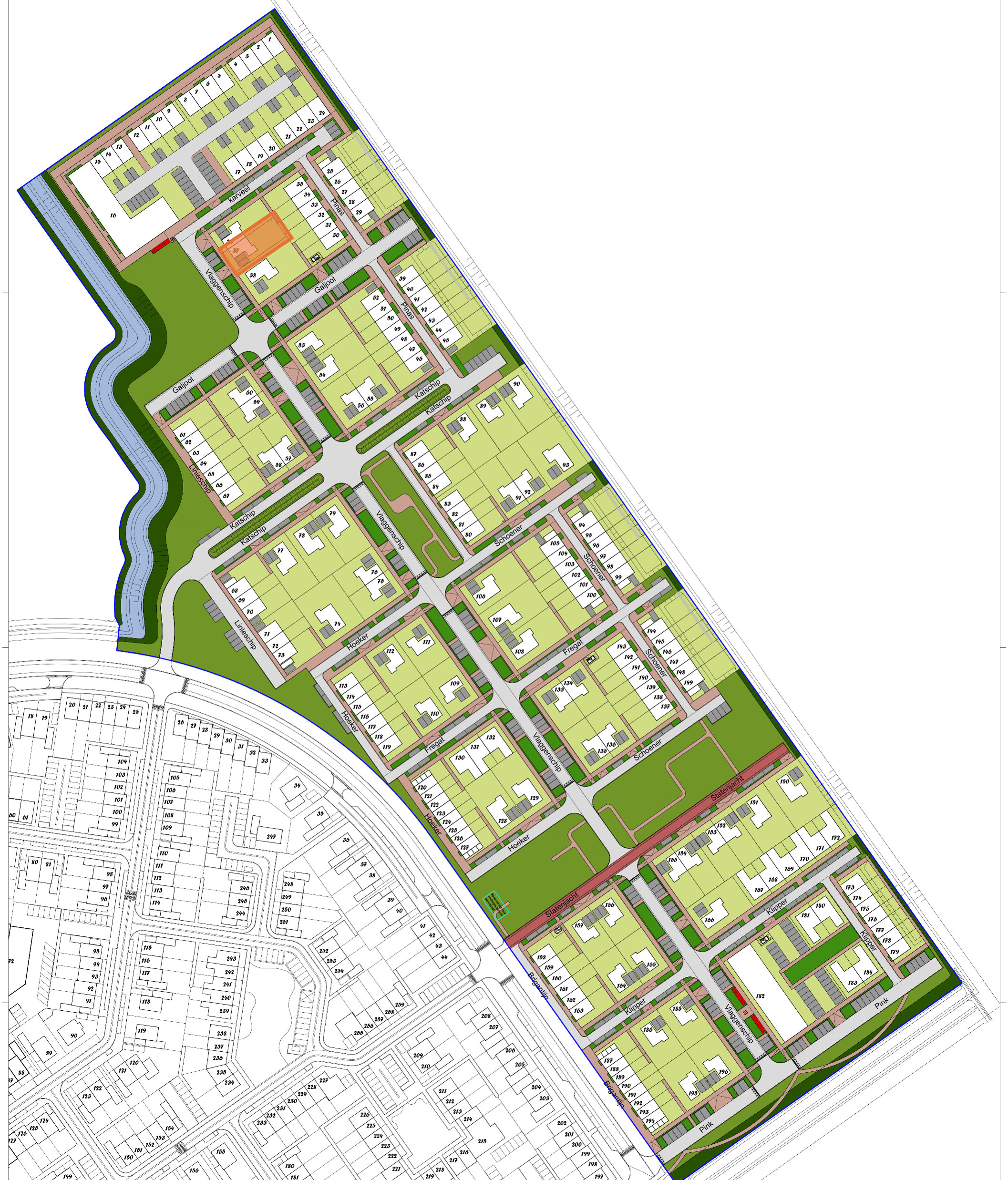
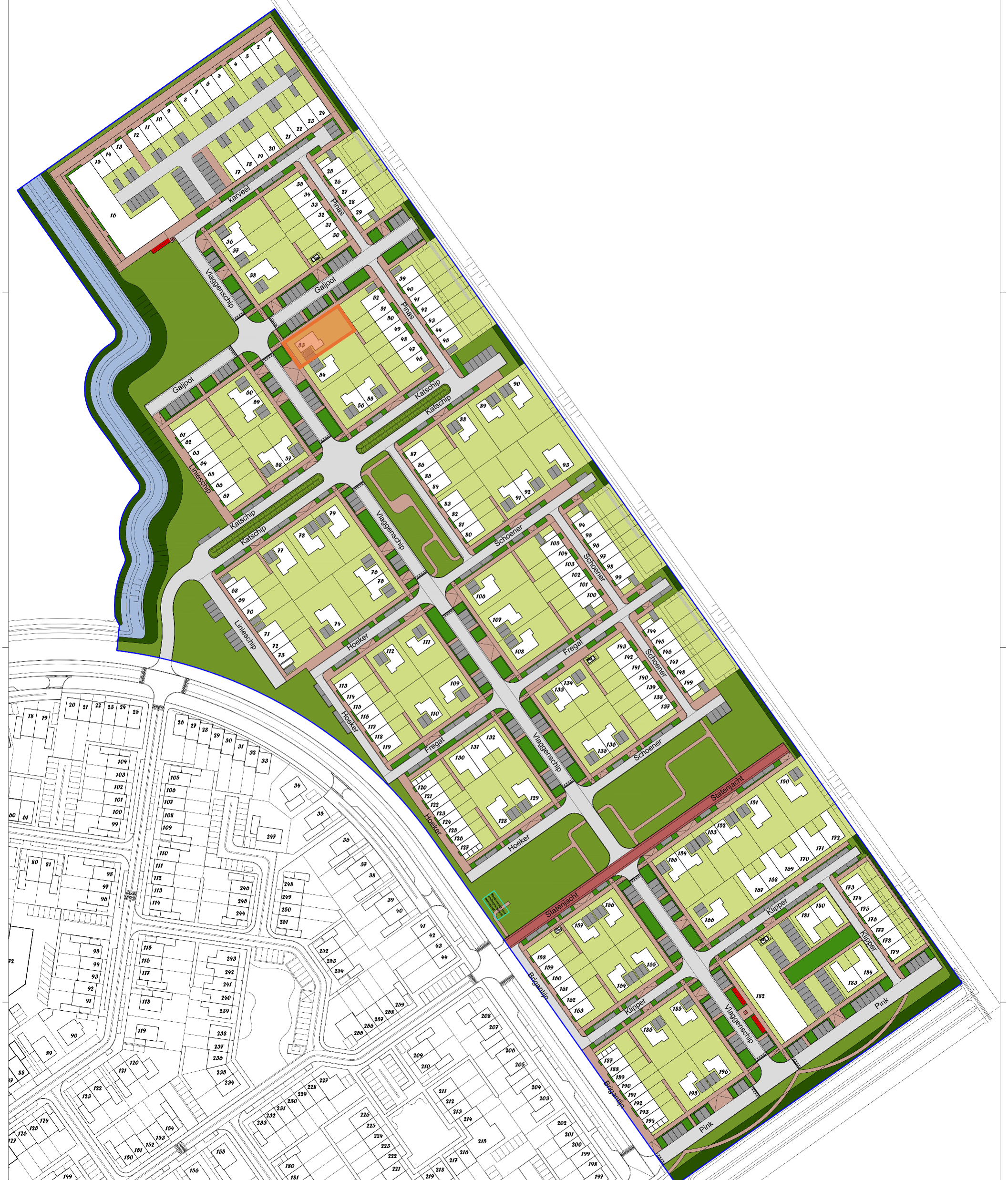
Kavel 53
Onder optie
15 inschrijvingen

De Akkers Veld B - Particuliere Kavels

Kavel 53

€ 192.148 Incl. BTW

388 m² Vrijstaand Particulier
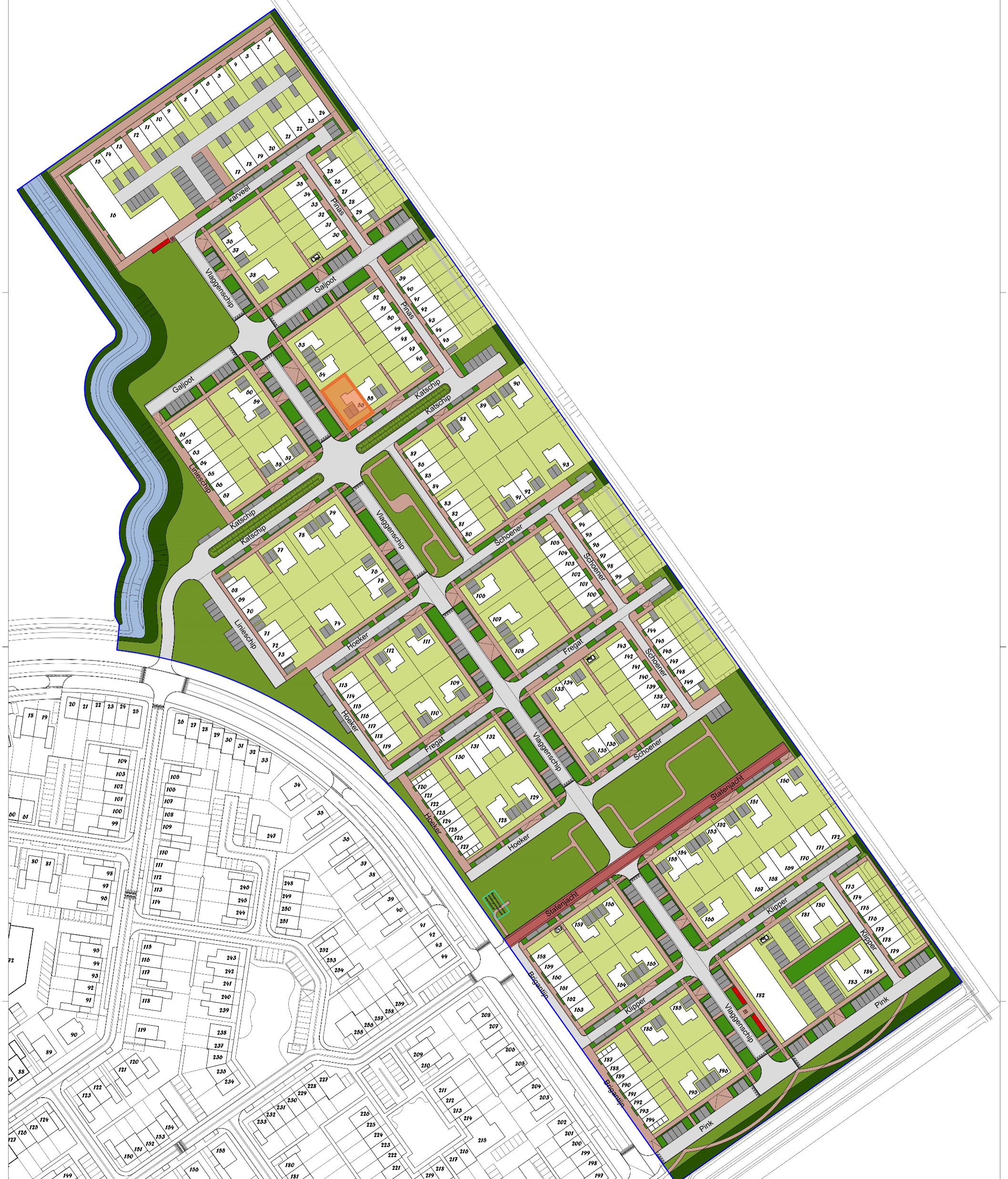
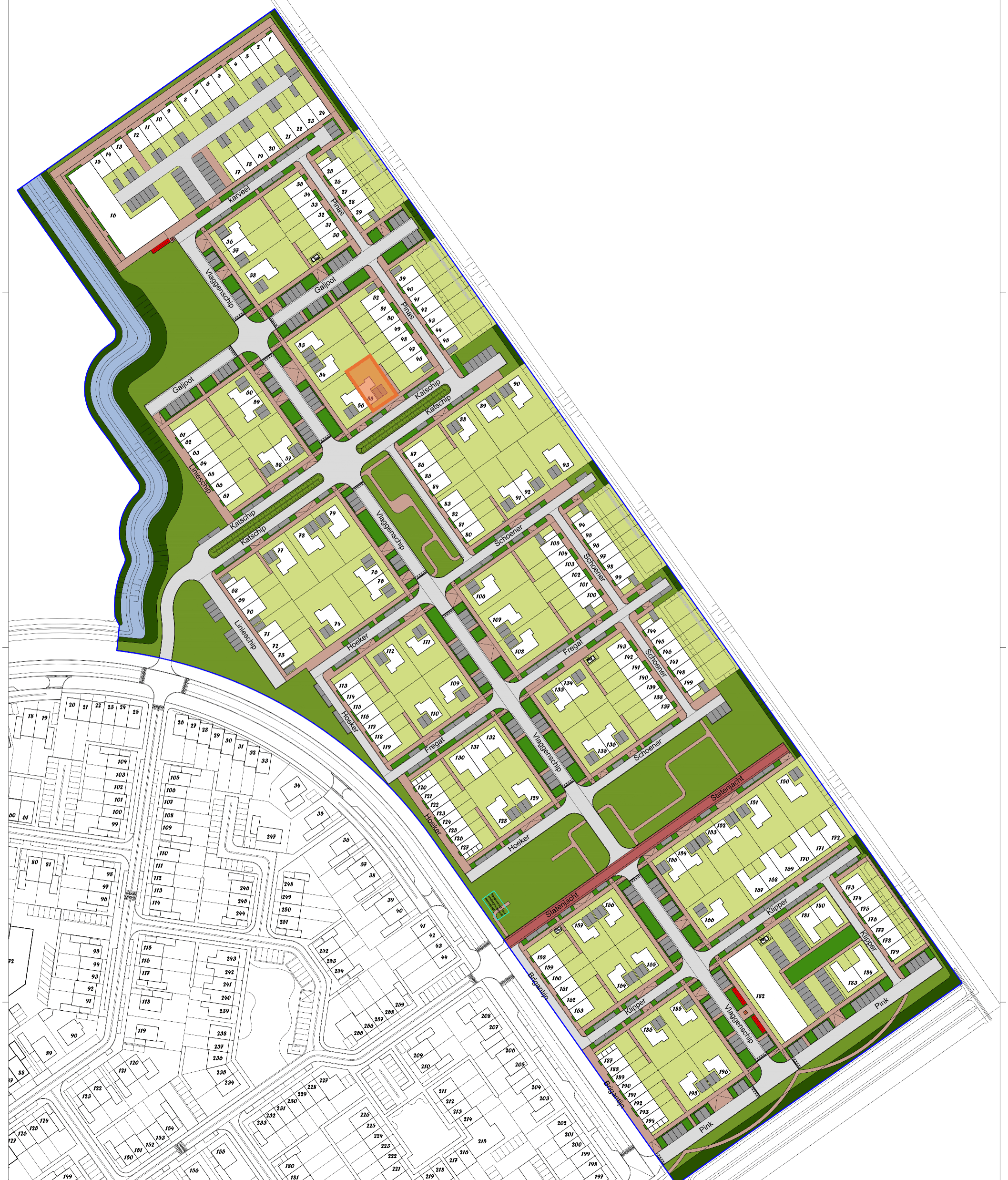
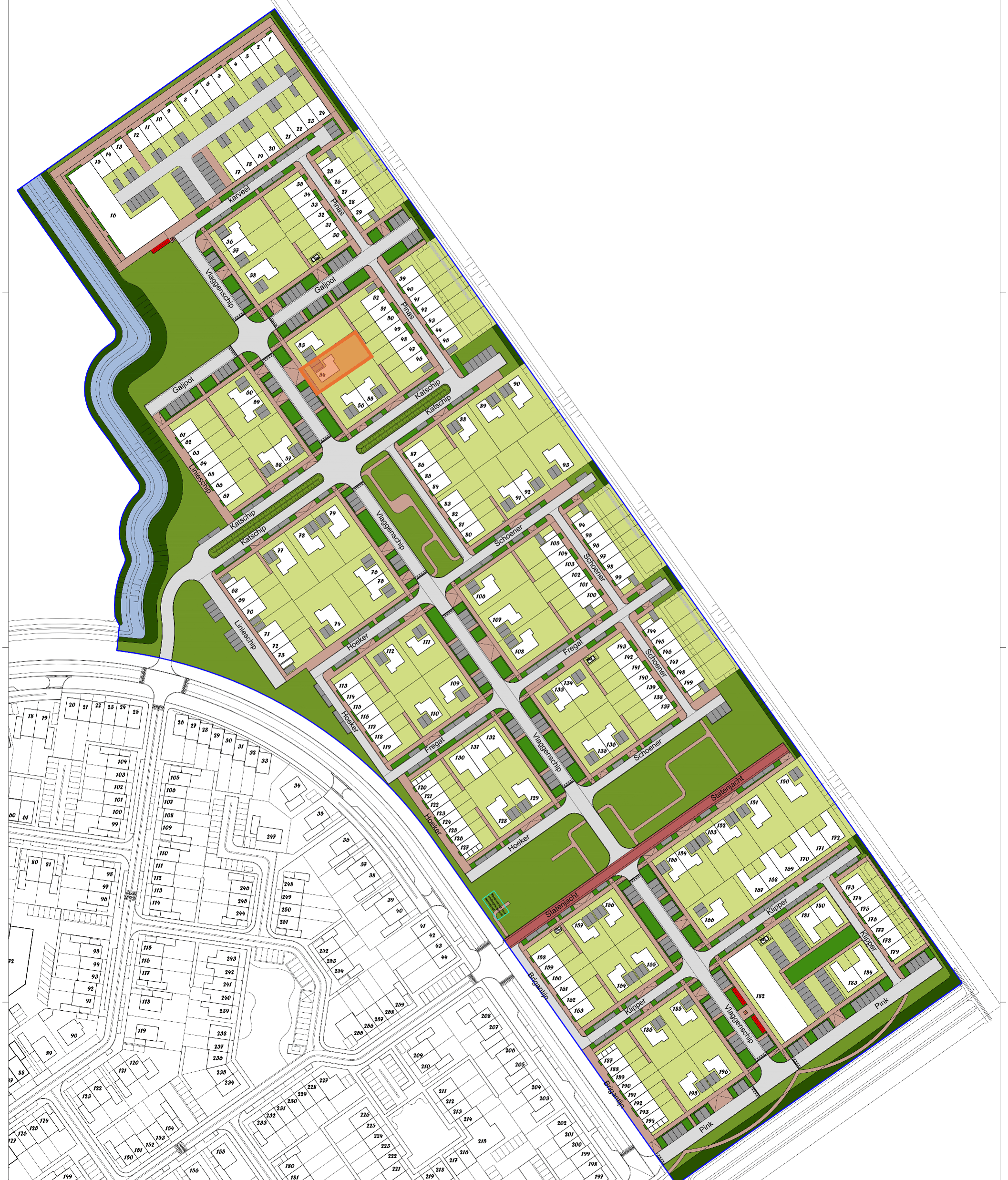
Kavel 54
Onder optie
10 inschrijvingen

De Akkers Veld B - Particuliere Kavels

Kavel 54

€ 192.148 Incl. BTW

388 m² Vrijstaand Particulier
Kavel 55 (medebouwer 56)
Onder optie
28 inschrijvingen

De Akkers Veld B - Particuliere Kavels

Kavel 55 (medebouwer 56)

€ 133.826 Incl. BTW

307 m² 2-onder-1-kap Particulier
Kavel 56 (medebouwer 55)
Onder optie
28 inschrijvingen

De Akkers Veld B - Particuliere Kavels

Kavel 56 (medebouwer 55)

€ 133.826 Incl. BTW

307 m² 2-onder-1-kap Particulier
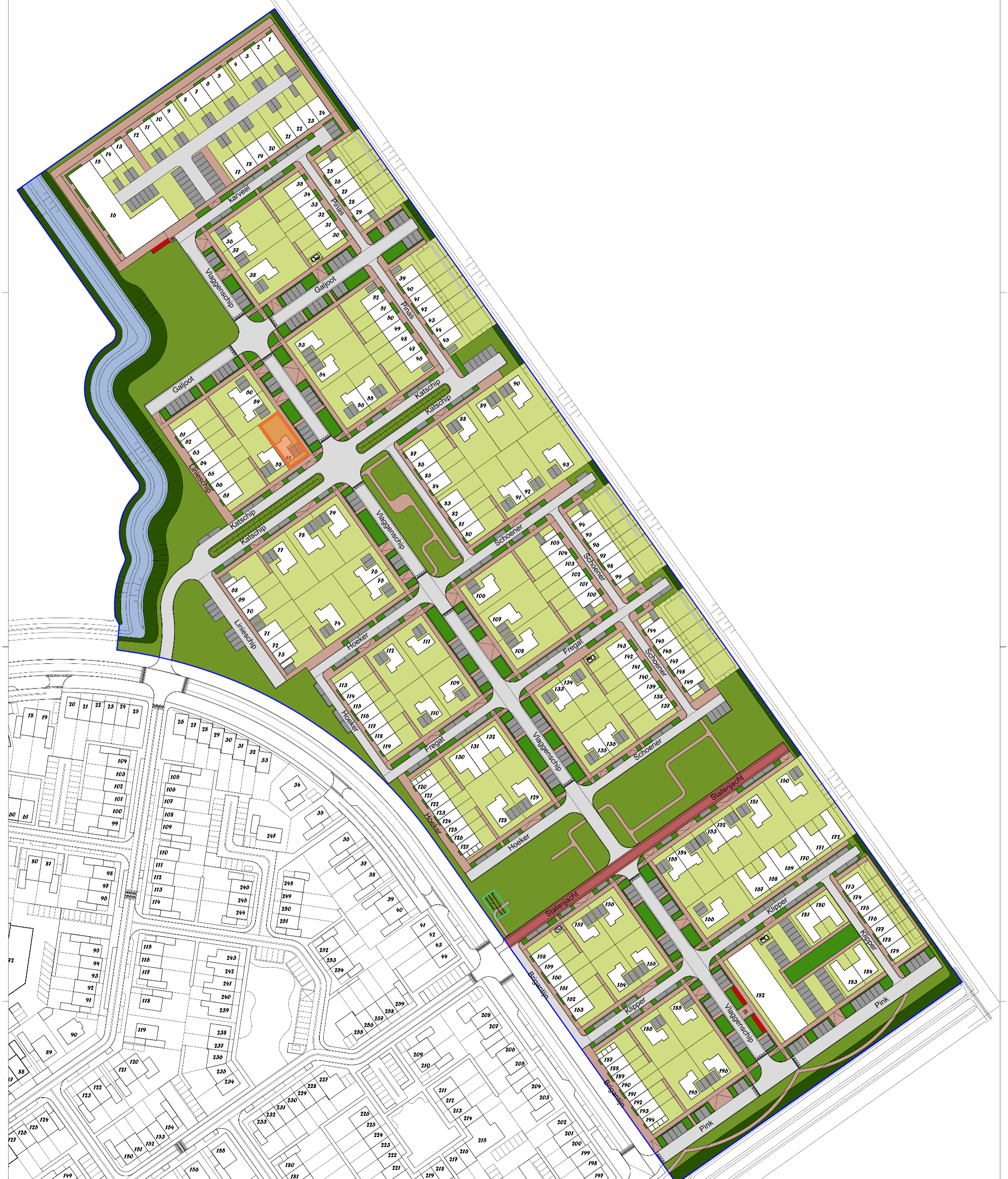
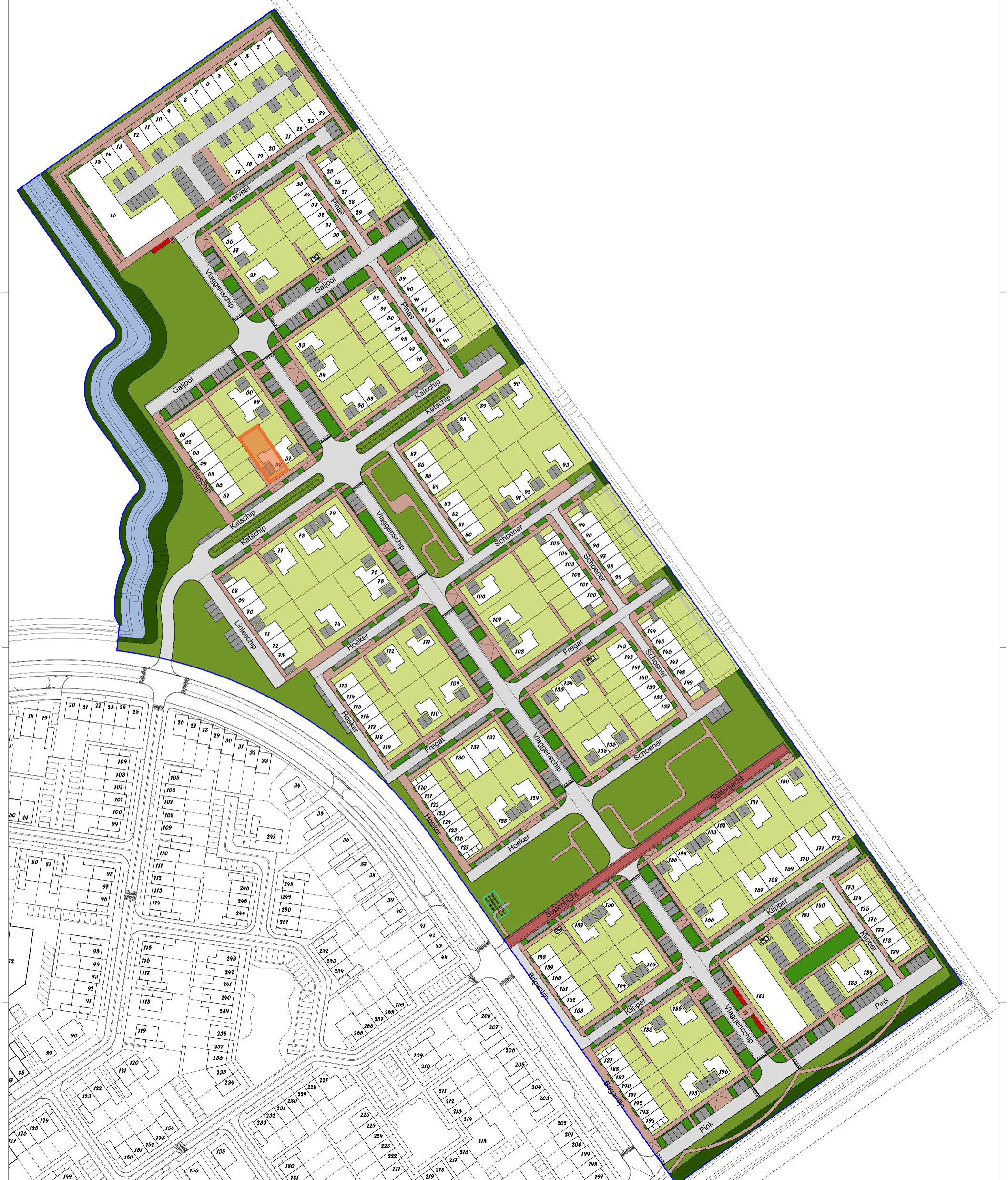
Kavel 57 (medebouwer 58)
Onder optie
36 inschrijvingen

De Akkers Veld B - Particuliere Kavels

Kavel 57 (medebouwer 58)

€ 119.911 Incl. BTW

275 m² 2-onder-1-kap Particulier
Kavel 58 (medebouwer 57)
Onder optie
36 inschrijvingen

De Akkers Veld B - Particuliere Kavels

Kavel 58 (medebouwer 57)

€ 119.911 Incl. BTW

275 m² 2-onder-1-kap Particulier
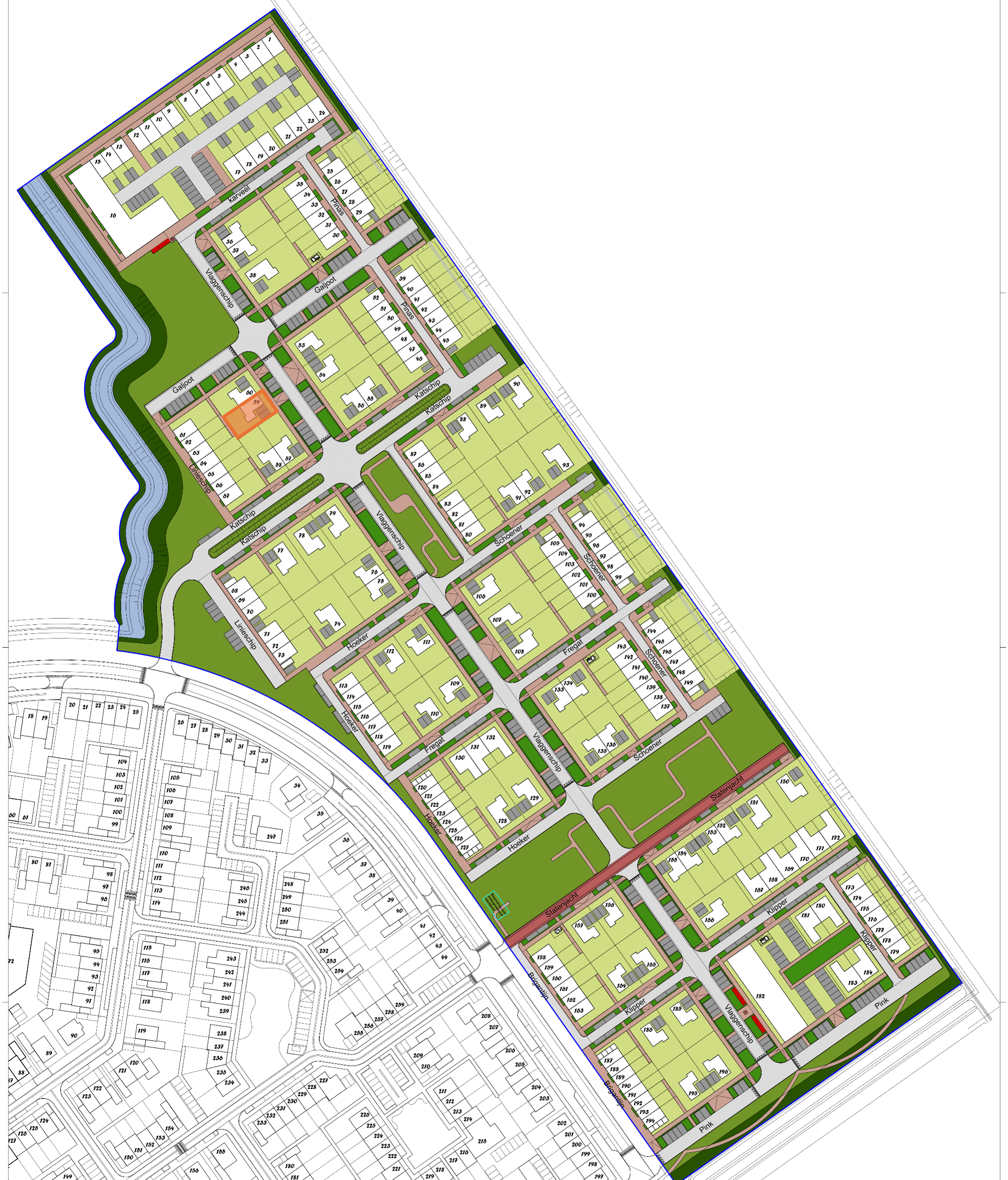
Kavel 59 (medebouwer 60)
Onder optie
36 inschrijvingen

De Akkers Veld B - Particuliere Kavels

Kavel 59 (medebouwer 60)

€ 113.861 Incl. BTW

261 m² 2-onder-1-kap Particulier
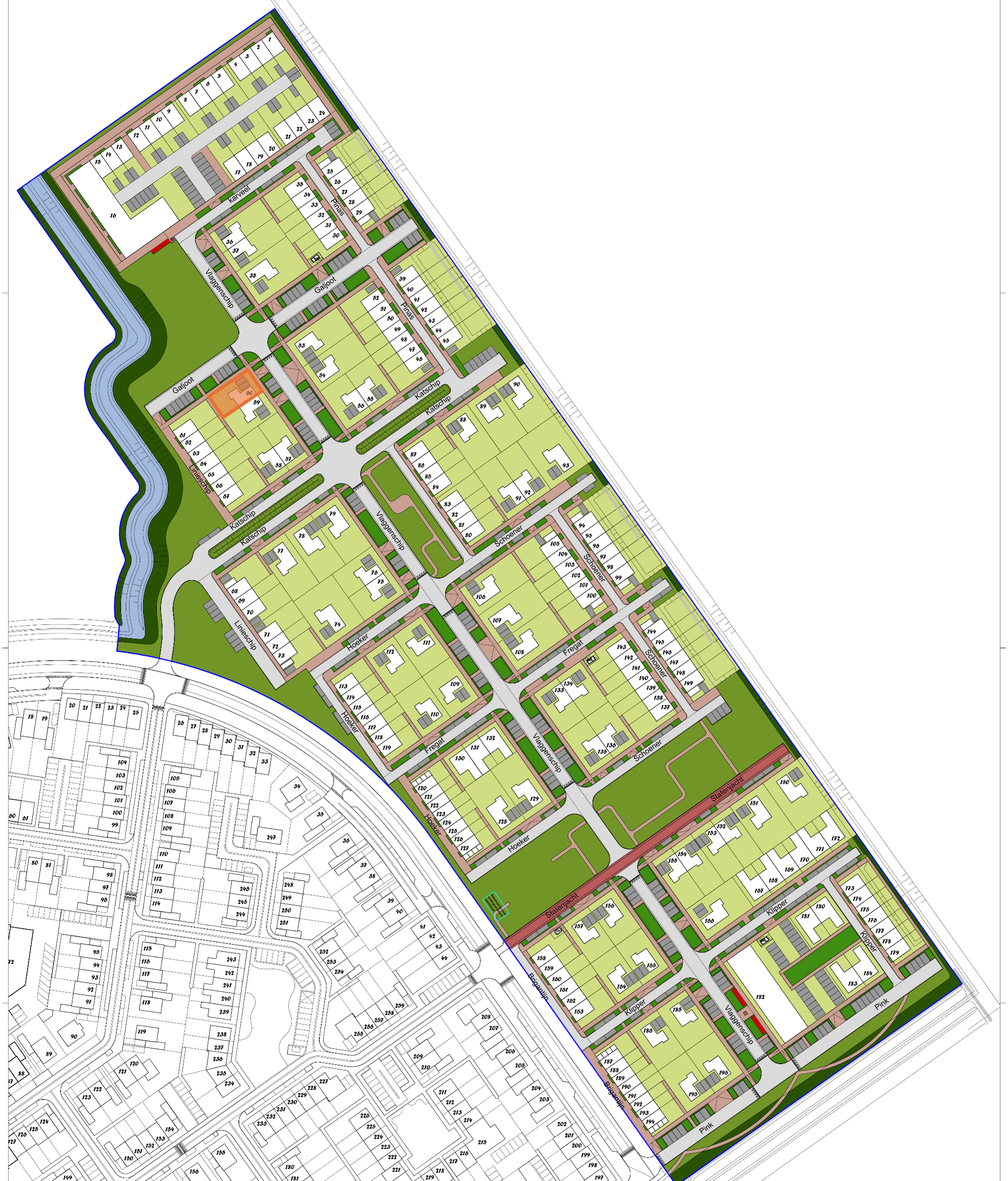
Kavel 60 (medebouwer 59)
Onder optie
36 inschrijvingen

De Akkers Veld B - Particuliere Kavels

Kavel 60 (medebouwer 59)

€ 113.861 Incl. BTW

261 m² 2-onder-1-kap Particulier
Kavel 74
Onder optie
10 inschrijvingen

De Akkers Veld B - Particuliere Kavels

Kavel 74

€ 280.236 Incl. BTW

566 m² Vrijstaand Particulier

Toont 1 tot 12 van 30 resultaten