Urk

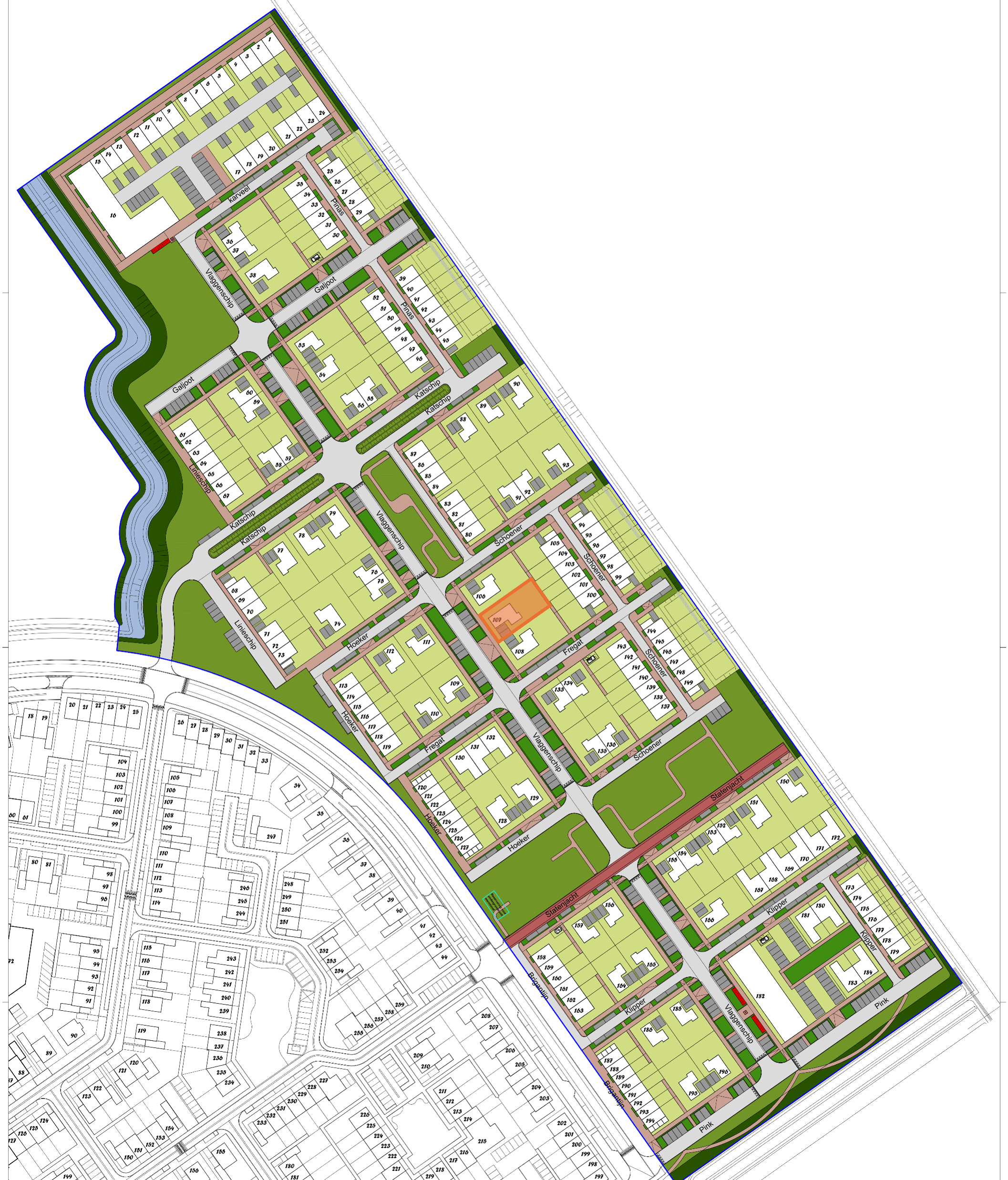
Kavel 107

€ 222.761 Incl. BTW

Kavel 107 met een oppervlakte van 450 m2

450 m² woonoppervlakte Vrijstaand
Onder optie
9 inschrijvingen

Informatie

Een particuliere kavel van 450 m2 oppervlakte.

Legenda

Onder optie

Klaar voor de toekomst

Nieuwbouw in Gemeente Urk biedt moderne woningen in een vertrouwde omgeving. De nieuwe woonwijken geven inwoners de kans om in de gemeente te blijven wonen. Hier ken je je buurman en woon je dichtbij voorzieningen. Deze projecten zijn geboren uit traditie, maar bieden de kwaliteit die je van een moderne woonwijk mag verwachten. We bouwen een nieuwe thuishaven voor onze woningzoekenden.

Duurzaamheid

Nieuwbouw op deze kavel dient te voldoen aan de huidige duurzaamheidseisen. Dit betekent dat uw woning energiezuinig en toekomstbestendig zal zijn, met lage energielasten als resultaat.

Eco banner