Urk

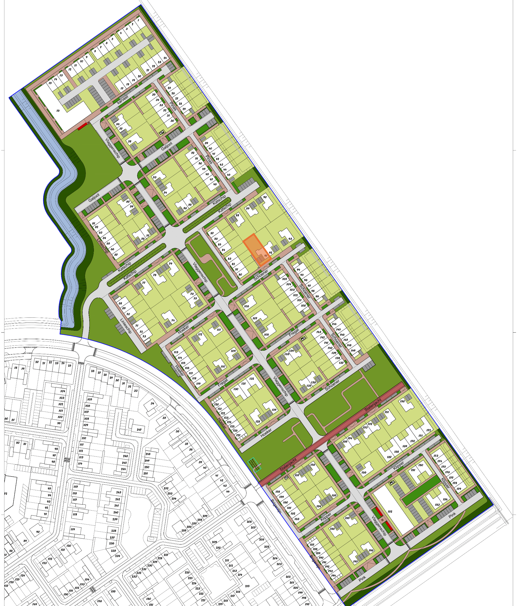
Kavel 91 (medebouwer 92)

€ 142.175 Incl. BTW

Twee-onder-één-kapwoning kavel 91

326 m² woonoppervlakte 2-onder-1-kap
Onder optie
20 inschrijvingen

Informatie

Kavel 91 is een Twee-onder-één-kapwoning met een oppervlakte van 326 m2.

Legenda

Onder optie

Klaar voor de toekomst

Nieuwbouw in Gemeente Urk biedt moderne woningen in een vertrouwde omgeving. De nieuwe woonwijken geven inwoners de kans om in de gemeente te blijven wonen. Hier ken je je buurman en woon je dichtbij voorzieningen. Deze projecten zijn geboren uit traditie, maar bieden de kwaliteit die je van een moderne woonwijk mag verwachten. We bouwen een nieuwe thuishaven voor onze woningzoekenden.

Duurzaamheid

Nieuwbouw op deze kavel dient te voldoen aan de huidige duurzaamheidseisen. Dit betekent dat uw woning energiezuinig en toekomstbestendig zal zijn, met lage energielasten als resultaat.

Eco banner